Elevador para automóveis do tipo hidráulico
| Esboço do elevador comum | Esboço Actuação com Dois cilindros 2:1 |
![]() |
![]() |
Actuação com Dois cilindros 1:1 (adequado para 2 paragens)
atuação com vários cilindros 1:1 (adequado para carga pesada)
Colocação de duplo cilindro. estrutura do tipo 2:1
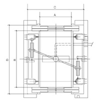
Parâmetros do Elevador para automóveis do tipo hidráulico
| Carga (kg) | Dimensão da cabine do elevador (mm) | Dimensão da via de elevação (mm) | PL(mm) | Porta | ||
| A | B | C | D | E (A) | Abertura centrada com dois paineis intercalando | |
| 2500 | 2300 | 5500 | 3500 | 6150 | 2200×2100 | |
| 3200 | 2500 | 6000 | 3900 | 6650 | 2300×2300 | |
| 5000 | 2700 | 7000 | 4200 | 7650 | 2500×2300 | |
Elevador de automóveis personalizado
Lantytk® CORP. é um fabricante profissional de Elevador de carga sem casa de máquinas que pesquisa, desenvolve, vende, instala, repara e faz a manutenção dos elevadores, numa única empresa. A empresa cumpre os requisitos ISO9001: 2000 para certificação do sistema de qualidade. Os nossos principais produtos são elevadores residênciais, elevadores de passageiros, elevadores panorâmicos, elevadores de carga, elevador para automóveis, elevador hidráulico.
Produtos relacionados

- Elevador de carga sem casa de máquinasLantytk® CORP is a professional machine roomless freight elevator manufacturer that integrates the research, development, sales, installation, repair and maintenance into one. The company passes ISO9001: 2000 quality system certification. Other then machine roomless freight elevator, we also supply villa elevator, passenger elevator, observation elevator, bed elevator, automobile elevator, hydraulic elevator, escalator...
English
Español
Português
